WEB
personal
con
46.643
páginas,
206.444
imágenes
Inicio
Sitios
Historia
Animales
Plantas
Setas
Minerales y rocas
Fósiles
Informática
Otras
Sitios
>
Europa
>
Unión Europea
>
España
>
Andalucía
>
Provincia de Jaén
>
Úbeda
Colegiata de Santa María de los Reales Alcázares. Capilla de la Virgen de la Merced
Religioso, Siglo XV
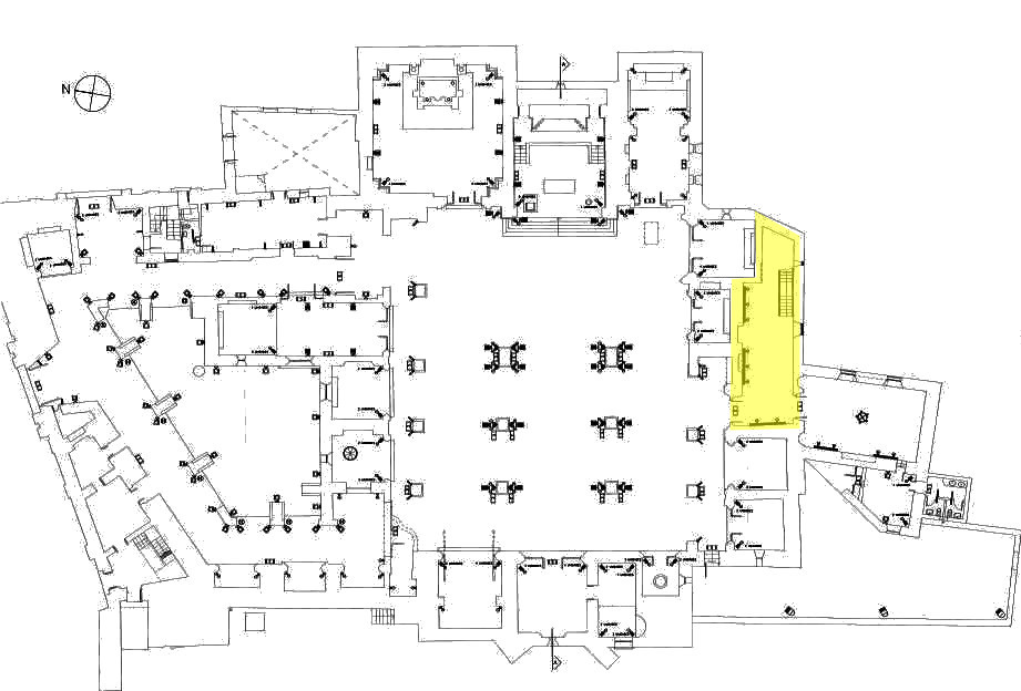
Plano
[Escucha este texto]
Capilla del lado de la Epístola de la
Colegiata de Santa María de los Reales Alcázares
.
Se encuentra entre la Capilla del Yaciente (
Colegiata de Santa María de los Reales Alcázares. Capilla del Yaciente
) y la Capilla del Cristo de la Caída (
Colegiata de Santa María de los Reales Alcázares. Capilla del Cristo de la Caída
).
Por ella se da paso a la Sacristía (
Colegiata de Santa María de los Reales Alcázares. Sacristía
).
Se trata de una antigua capilla, hoy transformada en Presacristía.
También fue conocida, entre otros nombres, como la Capilla de los Mercaderes.
La portada, construcción probable del siglo XV, es el único elemento originario que ha permanecido.
Sistema
Página confeccionada por Francisco Miguel Merino Laguna
Ver 2-20042301